Dom na sprzedaż Ustronie Morskie, Ku Słońcu

4 pokoje
81.00 m²
8 580,25 zł/m2
KMO-DS-2289
Oblicz ratę kredytu

695 000 zł

Dom na sprzedaż

Szczegóły oferty

Symbol oferty KMO-DS-2289
Powierzchnia 81,00 m²
Powierzchnia działki [m2] 382 m²
Liczba pokoi 4
Liczba sypialni 3
Rodzaj domu wolnostojący
Standard
Opłaty wg liczników woda, prąd
Liczba pięter w budynku 1
Wymiary działki 15x25 m
Garaż brak
Okna PCV
Instalacje nowe
Balkon brak
Liczba tarasów 1
Zagosp. działki zagospodarowana
Ukształtowanie działki lekko nachylona
Kształt działki prostokąt
Pokrycie dachu dachówka
Stan budynku do wykończenia
Ogrodzenie działki metalowe
Rok budowy 2024
Parking strzeżony (odległość w metrach) 1 m
Plac zabaw tak
Gaz brak
Woda ciepła - terma
Dojazd asfalt
Otoczenie osiedle
Ogrzewanie elektryczne
Odległość do komunikacji publicznej [m] 500 m
Odl. do sklepu [m] 600 m
Odl. do szkoły [m] 2 000 m
Odl. do przedszkola [m] 2 000 m
Tarasy taras duży
Drzwi antywłamaniowe tak
Przystosowania dla niepełnosprawnych tak
Prąd jest
Kanalizacja miejska
Odległość od plaży 2 000 m
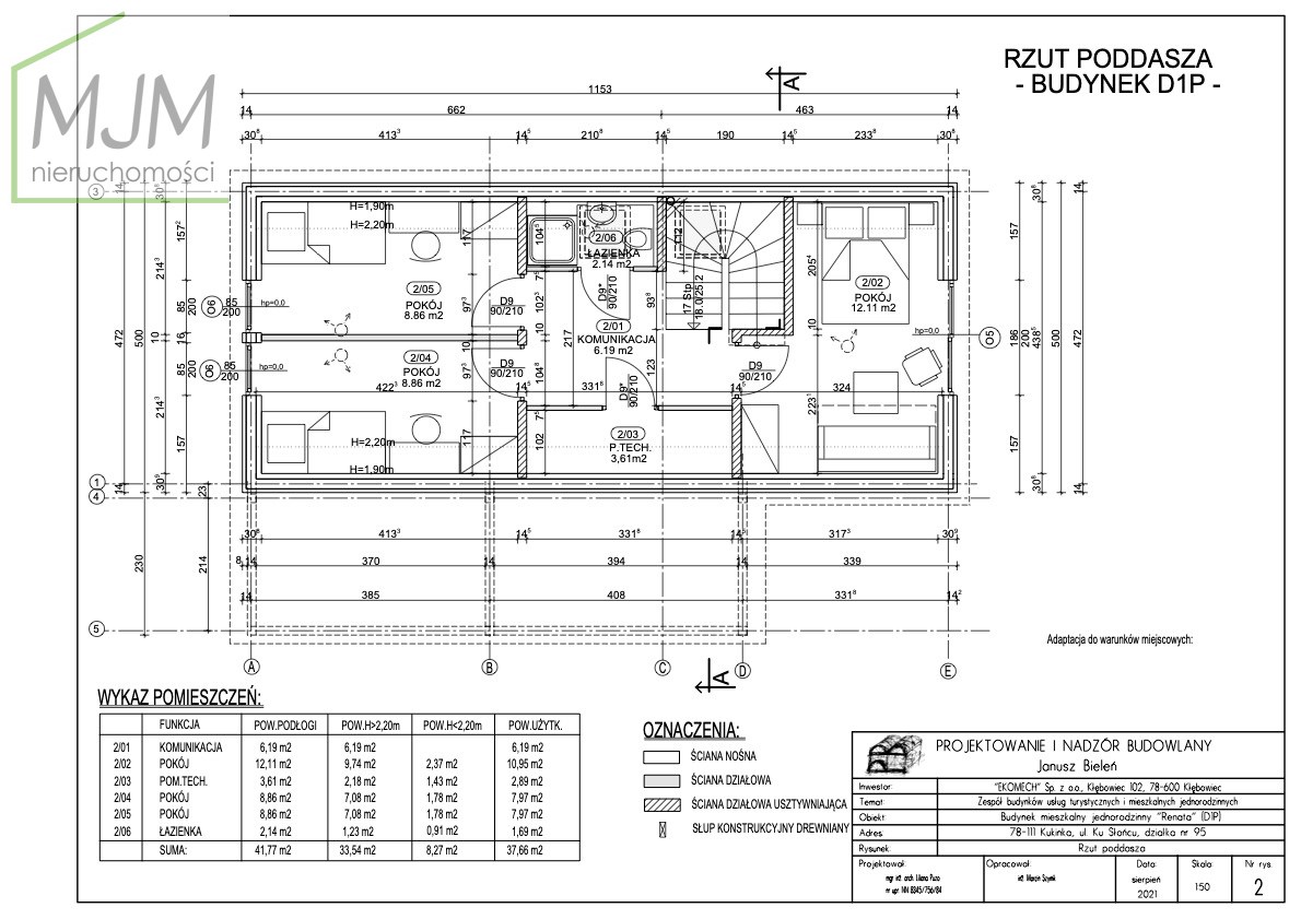
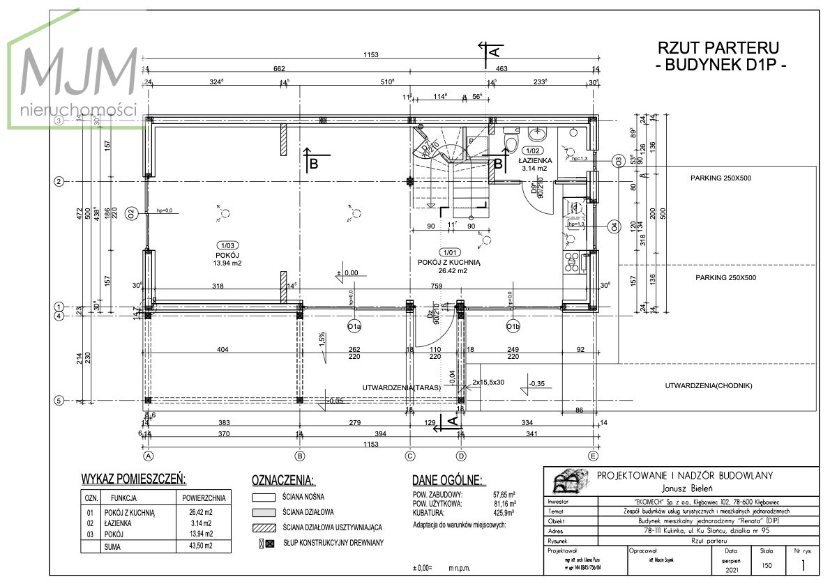
Pomieszczenia
Powierzchnia pokoi 26,42 13,94 12,11 8,86 8,86 m2
Podłogi pokoi panele
Typ kuchni aneks kuchenny
Rodzaj kuchni aneks kuchenny
Powierzchnia kuchni 8 m2
Podłoga kuchni wylewka, gres
Typ łazienki nowa
Liczba łazienek 2
Powierzchnia łazienki [m2] 3,14 2,14 m2
Glazura łazienki nowego typu
Podłoga łazienki wylewka, gres
Wyposażenie łazienki kabina prysznicowa
Liczba przedpokoi 2
Powierzchnia przedpokoi 4,6 6,19 m2
Podłoga przedpokoi wylewka

Opis nieruchomości

Nowy dom wolnostojący z werandą 18m2 i tarasem 29m2. 
Energooszczędny! EP 49,1 kWh/m2*rok (wymóg 70 kWh/m2*rok)!

Nowoczesny dom parterowy o powierzchni 81m2 + 39m2 patio i fotowoltaiką o mocy 6,38kW 

Budynek składa się z:
- trzech sypialni,
- salonu z aneksem kuchennym,
- jadalni,
- łazienki z oknem, ogólnodostępnej na parterze,
- łazienki z oknem na piętrze,
- pomieszczenia technicznego/garderoby na piętrze,
- pralni/kotłowni  pod schodami,
- komunikacji/przedpokoju na piętrze.

Przed domem dwa miejsca postojowe. 

Budynek wykonany w niemieckiej technologi STEICO.
Usytuowany na działce o powierzchni 382m2 w otoczeniu innych budynków jednorodzinnych. 
Osiedle ogrodzone i monitorowane, z placem zabaw dla dzieci, miejscem do grillowania i rekreacji w otoczeniu natury, nad oczkiem wodnym. 
Całość terenu oświetlona. 

Odległość do plaży w Ustroniu Morskim to 2km, market 600m. 
Dojazd drogą asfaltową. 

Oaza spokoju w bliskiej odległości od pięknej piaszczystej plaży i Morza Bałtyckiego. 

Zjazd do drogi S6 w odległości ok. 3km

Podana cena dotyczy oferty domu w standardzie deweloperskim


Wszystkie ceny są cenami brutto i zawierają VAT 8%.


 

Lokalizacja nieruchomości

Kalkulatory

Kalkulator kredytowy

Wysokość raty

PLN
%

Kalkulator kosztów

Podatek od czynności cywilno-prawnych

Taksa notarialna
(opłata notarialna)

Wniosek o wpis do WKW

VAT od prowizji
agencji nieruchomości

Vat od taksy notarialnej
(opłaty notarialnej)

Prowizja agencji nieruchomości

Wypisy aktu notarialnego

Razem

Uwaga: mogą wystąpić dodatkowe opłaty za założenie księgi wieczystej oraz ustanowienie hipoteki.

PLN
PLN
PLN
PLN
PLN
PLN
%
PLN

Podobne oferty

Dom na sprzedaż

Ustronie Morskie

4 pokoje 94 m2 9 521,28 zł/m2

Manager

Proszę wprowadzić poprawne imię i nazwisko
Proszę wprowadzić poprawny numer telefonu
Proszę wprowadzić poprawny adres e-mail
Proszę zaznaczyć wymagane zgody
Rozwiąż równanie:
27 2
Niepoprawny wynik