Działka na sprzedaż Kołbaskowo, Bobolin

833.00 m²
330,00 zł/m2
4KAT-GS-22550
Oblicz ratę kredytu

274 890 zł

Działka na sprzedaż

Szczegóły oferty

Symbol oferty 4KAT-GS-22550
Powierzchnia 833,00 m²
Standard
Zagosp. działki niezagospodarowana
Ukształtowanie działki płaska
Kształt działki prostokąt
Ogrodzenie działki brak
Woda w ulicy
Dojazd droga utwardzona
Otoczenie osiedle
Położenie na wsi
Prąd na działce
Kanalizacja szambo
Marcin Zuwalski

Marcin Zuwalski

Manager
Nr licencji: 24721

Napisz wiadomość 37 Ofert

Opis nieruchomości

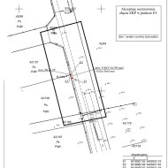
Na sprzedaż: Dwie działki budowlane – Bobolin, gm. Kołbaskowo

 

Na sprzedaż dwie atrakcyjne działki budowlane położone w miejscowości Bobolin, w gminie Kołbaskowo, zlokalizowane na kameralnym osiedlu zamkniętym.

 

Szczegóły oferty:

  • Działka nr 42/157 – powierzchnia 834 m²
  • Działka nr 42/158 – powierzchnia 833 m² - REZERWACJA
  • Teren płaski, przygotowany pod zabudowę jednorodzinną
  • Media:
    • Prąd – doprowadzony do działek
    • Woda – sieć wodociągowa kończy się przed działkami 
    • Kanalizacja – szambo

Lokalizacja:

  • Malownicza i spokojna okolica w Bobolinie
  • Szybki dojazd do Szczecina i autostrady A6
  • Bliskość terenów zielonych, lasów i tras spacerowych

Zalety:

  • Osiedle zamknięte – bezpieczeństwo i prywatność
  • Warunki zabudowy przewidują budowę domu jednorodzinnego
  • Atrakcyjna lokalizacja w jednej z najbardziej poszukiwanych gmin w okolicach Szczecina

Cena:

  • Działka nr 42/157 – powierzchnia 834 m² - cena 275220 zł
  • Działka nr 42/158 – powierzchnia 833 m² - cena 274890 zł  REZERWACJA

Cena do negocjacji

Zainteresowanych zapraszam do kontaktu i umówienia się na prezentację terenu!

Biuro Nieruchomości pobiera wynagrodzenie 

Kalkulatory

Kalkulator kredytowy

Wysokość raty

PLN
%

Kalkulator kosztów

Podatek od czynności cywilno-prawnych

Taksa notarialna
(opłata notarialna)

Wniosek o wpis do WKW

VAT od prowizji
agencji nieruchomości

Vat od taksy notarialnej
(opłaty notarialnej)

Prowizja agencji nieruchomości

Wypisy aktu notarialnego

Razem

Uwaga: mogą wystąpić dodatkowe opłaty za założenie księgi wieczystej oraz ustanowienie hipoteki.

PLN
PLN
PLN
PLN
PLN
PLN
%
PLN

Podobne oferty

Działka Bobolin Kołbaskowo 872 m2

Kołbaskowo, Bobolin

872 m2 280,85 zł/m2

Manager

Proszę wprowadzić poprawne imię i nazwisko
Proszę wprowadzić poprawny numer telefonu
Proszę wprowadzić poprawny adres e-mail
Proszę zaznaczyć wymagane zgody
Rozwiąż równanie:
12 1
Niepoprawny wynik