176.00 m²
45,17 zł/m2
SZN-LW-91

7 950 zł

Lokal na wynajem

Szczegóły oferty

Symbol oferty SZN-LW-91
Powierzchnia 176,00 m²
Standard
Stan lokalu deweloperski
Rodzaj lokalu wielopoziomowy
Przeznaczenie lokalu biurowo - magazynowy, biurowy, handlowo-usługowy, handlowy, inny, magazynowy, usługowy
Otoczenie centrum miasta
Witryna wystawowa od ulicy
Marcin Zuwalski

Marcin Zuwalski

Manager
Nr licencji: 24721

Napisz wiadomość 36 Ofert

Opis nieruchomości

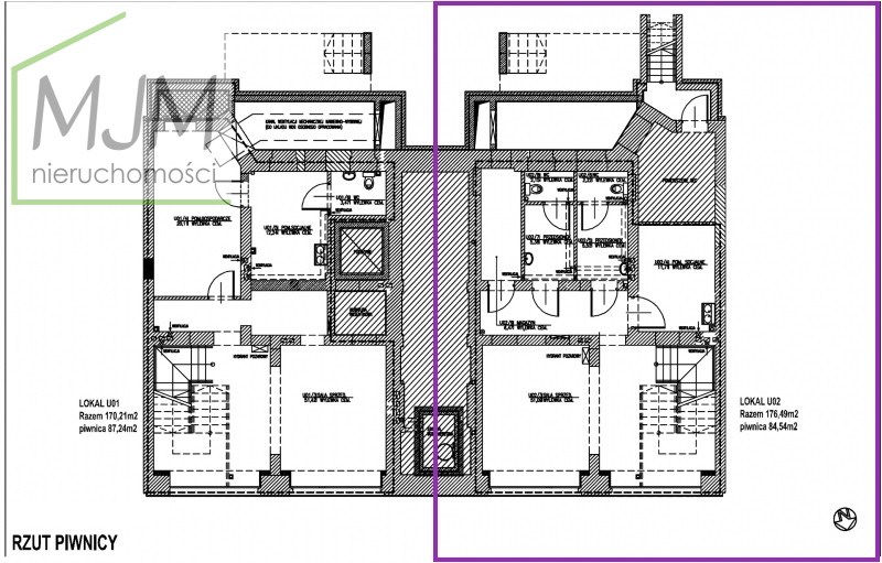
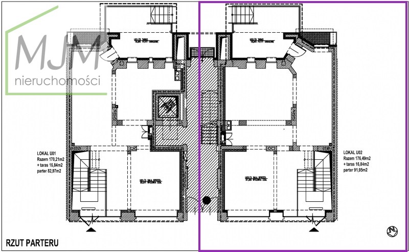
Na wynajem przestronny, dwupoziomowy lokal użytkowy o łącznej powierzchni 176 m² z dodatkowym tarasem 16 m², zlokalizowany w ścisłym centrum Szczecina.

PARAMETRY LOKALU:

  • Powierzchnia całkowita: 176 m²

    • Parter: 92 m²,

    • Wysoka piwnica z oknami: 84 m².

  • Taras: 16 m²

  • Czynsz najmu: 7 950 zł netto miesięcznie + VAT

Lokal o bardzo funkcjonalnym układzie, z dużym potencjałem aranżacyjnym. Parter (92 m²) stanowi przestronną powierzchnię idealną pod działalność usługową, handlową, biurową, showroom, gabinety specjalistyczne lub kancelarie.

Dodatkową przestrzeń stanowi wysoka piwnica (84 m²), która może pełnić funkcję zaplecza biurowego, magazynowego, sali szkoleniowej lub dodatkowych gabinetów.

Atutem nieruchomości jest również taras o powierzchni 16 m², który może zostać wykorzystany jako strefa relaksu dla pracowników lub przestrzeń dodatkowa dla klientów.

Lokal znajduje się w atrakcyjnej części miasta, w centralnej strefie Szczecina, z bardzo dobrą komunikacją miejską oraz dostępem do pełnej infrastruktury handlowo-usługowej. Lokalizacja zapewnia wygodny dojazd zarówno dla klientów, jak i pracowników.

Zapraszamy do kontaktu w celu uzyskania dodatkowych informacji oraz umówienia prezentacji.

Podobne oferty

Lokal na wynajem

Szczecin, Śródmieście

120 m2 57,89 zł/m2

Lokal na wynajem

Szczecin, Centrum

200 m2 33,00 zł/m2

Lokal do wynajęcia w Stanie deweloperskim

Szczecin, Pomorzany

121 m2 53,77 zł/m2

Lokal na wynajem

Szczecin, Gumieńce

240 m2 33,93 zł/m2

Manager

Proszę wprowadzić poprawne imię i nazwisko
Proszę wprowadzić poprawny numer telefonu
Proszę wprowadzić poprawny adres e-mail
Proszę zaznaczyć wymagane zgody
Rozwiąż równanie:
13 9
Niepoprawny wynik