Mieszkanie na sprzedaż Szczecin, Śródmieście, Jagiellońska

1 pokoj
25.15 m²
11 000,00 zł/m2
4 piętro
NGK-MS-498
Oblicz ratę kredytu

459 000 zł 276 650 zł
Najniższa cena z ostatnich 30 dni: 276 650 zł

nowa cena
Mieszkanie na sprzedaż
Nowa oferta

Szczegóły oferty

Symbol oferty NGK-MS-498
Powierzchnia 25,15 m²
Powierzchnia użytkowa [m2] 25,15 m²
Liczba pokoi 1
Rodzaj budynku kamienica
Technologia budowlana cegła
Standard
Piętro 4
Liczba pięter w budynku 4
Stan lokalu deweloperski
Okna drewniane
Instalacje nowe
Balkon brak
Widok na inne budynki
Gaz brak
Woda tak-podgrzewacz elektryczny
Dojazd asfalt
Otoczenie centrum miasta
Ogrzewanie inne
Umeblowanie brak
Usytuowanie jednostronne
Klucze tak
Marcin Zuwalski

Marcin Zuwalski

Manager
Nr licencji: 24721

Napisz wiadomość 38 Ofert

Opis nieruchomości

Do sprzedaży mieszkanie 1 pokojowe, z klimatyzacją, położone przy ul. Jagiellońskiej.

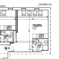
Adaptacja poddasza:
- pokój dzienny z aneksem kuchennym 21,71 m2,
- łazienka 3,44 m2.

Mieszkanie o jednostronnej - wschodniej ekspozycji okien. Powierzchnia użytkowa wg. dokumentacji projektowej to 25,15 m2.

Lokal oddany będzie w standardzie deweloperskim z możliwością wykończenia lokalu pod klucz.

Standard: podłogi - płyta OSB oraz płyta ognioodporna, ściany i sufity wygładzone i
pomalowane na biało, rozprowadzone instalacje: elektryczna i wodno – kanalizacyjna. W kuchni i w łazience wyprowadzone, w zależności od projektu, wszystkie podłączenia pod zlewy, umywalki, wanny lub kabiny prysznicowe, pralki i płyty, itp. Drzwi wejściowe antywłamaniowe, ognioodporne.

Ogrzewanie i chłodzenie lokalu - klimatyzator, ciepła woda - podgrzewacz elektryczny.

Podana cena jest ceną brutto, zawiera podatek VAT - kupujący nie płaci 2 % podatku PCC.

Polecam.

 

Lokalizacja nieruchomości

Kalkulatory

Kalkulator kredytowy

Wysokość raty

PLN
%

Kalkulator kosztów

Podatek od czynności cywilno-prawnych

Taksa notarialna
(opłata notarialna)

Wniosek o wpis do WKW

VAT od prowizji
agencji nieruchomości

Vat od taksy notarialnej
(opłaty notarialnej)

Prowizja agencji nieruchomości

Wypisy aktu notarialnego

Razem

Uwaga: mogą wystąpić dodatkowe opłaty za założenie księgi wieczystej oraz ustanowienie hipoteki.

PLN
PLN
PLN
PLN
PLN
PLN
%
PLN

Podobne oferty

Mieszkanie na sprzedaż

Szczecin, Śródmieście

1 pokoj 31 m2 9 967,74 zł/m2
Nowa oferta

Mieszkanie na sprzedaż

Szczecin, Śródmieście

1 pokoj 25 m2 11 000,00 zł/m2
Nowa oferta
Nowa oferta

Mieszkanie na sprzedaż

Szczecin, Śródmieście

1 pokoj 27 m2 11 000,00 zł/m2
Nowa oferta
Nowa oferta

Mieszkanie na sprzedaż

Szczecin, Śródmieście

1 pokoj 26 m2 11 000,00 zł/m2
Nowa oferta

Manager

Proszę wprowadzić poprawne imię i nazwisko
Proszę wprowadzić poprawny numer telefonu
Proszę wprowadzić poprawny adres e-mail
Proszę zaznaczyć wymagane zgody
Rozwiąż równanie:
29 6
Niepoprawny wynik