Przestronna kawalerka Goleniów Chopina 40 m2 Goleniów

1 pokoj
40.70 m²
11 277,64 zł/m2
parter
4KAT-MS-22620
Oblicz ratę kredytu

459 000 zł

Przestronna kawalerka Goleniów Chopina 40 m2

Szczegóły oferty

Symbol oferty 4KAT-MS-22620
Powierzchnia 40,70 m²
Powierzchnia użytkowa [m2] 40,70 m²
Powierzchnia balkonów/tarasów 21,60 m²
Liczba pokoi 1
Rodzaj budynku blok
Technologia budowlana żelbeton
Piętro parter
Liczba pięter w budynku 2
Garaż w budynku
Stan lokalu deweloperski
Okna PCV
Instalacje nowe
Liczba tarasów 1
Winda tak
Tarasy taras duży
Marcin Zuwalski

Marcin Zuwalski

Manager
Nr licencji: 24721

Napisz wiadomość 37 Ofert

Opis nieruchomości

Na sprzedaż: Nowa, duża kawalerka 40,7 m² – Goleniów, ul. Chopina

Etap 3 nowoczesnej inwestycji | Balkon | Winda | Garaż podziemny

Szukasz komfortowego, przestronnego mieszkania w spokojnej okolicy, a jednocześnie blisko centrum i komunikacji? To idealna propozycja dla Ciebie!

Opis mieszkania:

Mieszkanie o powierzchni 40,7m², w stanie deweloperskim – idealne do aranżacji według własnych potrzeb i gustu.

W skład mieszkania wchodzi:

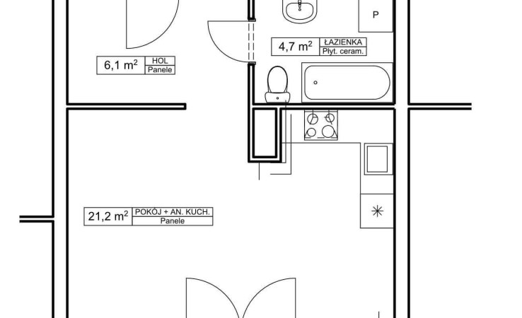
  • Pokój dzienny z aneksem kuchennym (21,1 m²) z wyjściem na duży taras – przestronna i jasna część dzienna,
  • Łazienka  (5,1 m²),
  • Hol (5,5 m²).

Atuty inwestycji:

  • Nowoczesna, niska zabudowa – kameralna atmosfera,
  • Winda w budynku – wygoda na co dzień,
  • Podziemne garaże oraz zewnętrzne miejsca postojowe,
  • Plac zabaw dla dzieci na terenie osiedla,
  • Zielona okolica – w sąsiedztwie park, rzeka i ścieżki rowerowe,
  • Bardzo dobra lokalizacja – tylko kilka minut do dworca kolejowego i autobusowego, idealne połączenie z Szczecinem i regionem.

Dlaczego warto?

To doskonała lokalizacja zarówno do zamieszkania, jak i pod wynajem. Ciche otoczenie, dostęp do natury, a jednocześnie bliskość komunikacji i centrum miasta tworzą unikalną kombinację komfortu i wygody.

Cena: 459 000 zł

Kontakt: Paula Symonowicz  t. 733-209-732

 


Budynek wybudowany został w sposób tradycyjny.
Ściany zewnętrzne: murowane, z bloków silikatowych 24 cm

  1. Stolarka okienna - profil PCV, 5-komorowa, zestaw 3-szybowy;
  2. Drzwi wejściowe do mieszkań typu antywłamaniowego PORTA;
  3. Winda cichobieżna z poziomu garaży;
  4. Instalacja internetowa wewnętrzna;
  5. Instalacja centralnego ogrzewania: miejskie, grzejniki panelowe z głowicami termostatycznymi.

Kalkulatory

Kalkulator kredytowy

Wysokość raty

PLN
%

Kalkulator kosztów

Taksa notarialna
(opłata notarialna)

Wniosek o wpis do WKW

VAT od prowizji
agencji nieruchomości

Vat od taksy notarialnej
(opłaty notarialnej)

Prowizja agencji nieruchomości

Wypisy aktu notarialnego

Razem

Uwaga: mogą wystąpić dodatkowe opłaty za założenie księgi wieczystej oraz ustanowienie hipoteki.

PLN
PLN
PLN
PLN
PLN
%
PLN

Podobne oferty

Bez prowizji

Nowe mieszkania w Goleniowie! 0% Prowizji !

Goleniów

3 pokoje 65 m2 7 526,88 zł/m2
Bez prowizji

Mieszkanie na sprzedaż

Goleniów

4 pokoje 53 m2 8 867,92 zł/m2

Gotowe mieszkanie 3 pokoje, balkon, parter

Goleniów

3 pokoje 65 m2 7 515,34 zł/m2

Mieszkanie 2 pokoje nowe Chopina Goleleniów parter

Goleniów

2 pokoje 65 m2 9 006,12 zł/m2

Manager

Proszę wprowadzić poprawne imię i nazwisko
Proszę wprowadzić poprawny numer telefonu
Proszę wprowadzić poprawny adres e-mail
Proszę zaznaczyć wymagane zgody
Rozwiąż równanie:
10 7
Niepoprawny wynik